13818867255
三通球阀有T型和L型。T型能使三条正交的管道相互联通和切断第三条通道,起分流、合流作用。L三通球阀型只能连接相互正交的两条管道,不能同时保持第三条管道的相互连通,只起分配作用。 三通球阀的工作原理是靠旋转阀恋来使阀门畅通或闭塞。

三通球阀有T型和L型。T型能使三条正交的管道相互联通和切断第三条通道,起分流、合流作用。L三通球阀型只能连接相互正交的两条管道,不能同时保持第三条管道的相互连通,只起分配作用。 三通球阀的工作原理是靠旋转阀恋来使阀门畅通或闭塞。球阀开关轻便,体积小,可以做成很大口径,密封可靠,结构 简单,维修方便,密封面与球面常在闭合状态,不易被介质冲蚀,在各行业得到广泛的应用。 三通球阀在管路中主要用来做切断、分配和改变介质的流动方向。球阀是近年来被广泛采用的一种新型阀门 三通球阀是一种比较新型的球阀类别,它有着自身结构所独有的一些优越性,如开关无摩擦,密封不易磨损,启闭力矩小。这样可减小所配执行器的规格。配以多回 转电动执行机构,可实现对介质的调节和严密切断。广泛适用于石油、化工、城市给排水等要求严格切断的工况。
三通球阀在结构上采用一体化结构,4 面阀座的密封型式,法兰联接少,可靠性高,设计实现了轻量化
三通球阀分 T 型和 L 型,使用寿命长,流通能力大,阻力小
三通球阀按作用式分单作用和双作用两种型式,单作用式的特点是一旦动力源发生故障时,球阀将处于控制系统要求的状态
| 设计依据Design Standard | GB | ASME |
|---|---|---|
| 设计标准 Design Standard | GB/T 12237 | ASME B 16.34 |
| 结构长度 Face to Face | GB/T 12221 | ASME B 16.10 |
| 连接法兰Flanged Size | JB/T 79 | ASME B16.5 |
| 实验和检验 Test and Inspection | JB/T 9092 | API 598 |
注:系列阀门连接法兰尺寸可根据用户要求设计制造。
| 序号 | 零件名称 | 材质 | ![]() 注:系列阀门主要零部件及密封面的材质可根据实际工况调价或用户特殊要求设计选用 | |
|---|---|---|---|---|
| GB | ASTM | |||
| 1 | 右体 | WCB | A216-WCB | |
| 2 | 螺母 | 35 | A194-2H | |
| 3 | 螺柱 | 35CrMoA | A193-B7 | |
| 4 | 垫片 | 柔性石墨+不锈钢 | 柔性石墨+不锈钢 | |
| 5 | 密封圈 | PTFE | PTFE | |
| 6 | 球体 | 25+ENP | A105 + ENP | |
| 7 | 密封圈 | PTFE | PTFE | |
| 8 | 阀体 | WCB | A216-WCB | |
| 9 | 密封圈 | PTFE | PTFE | |
| 10 | 密封圈 | PTFE | PTFE | |
| 11 | 阀座 | 25 | A105 | |
| 12 | O型圈 | 氟橡胶 | 氟橡胶 | |
| 13 | 预紧螺母 | 25 | A105 | |
| 14 | 填料 | 1Cr13 | A276-410 | |
| 15 | 阀杆 | 1Cr13 | A182-F6a | |
| 16 | 垫片 | PTFE | PTFE | |
| 17 | 填料 | 柔性石墨 | 柔性石墨 | |
| 18 | 螺钉 | 35CrMoA | A193-B7 | |
| 19 | 填料压盖 | WCB | A276-WCB | |
| 20 | 定位片 | Q235A | 碳钢 | |
| 21 | 挡圈 | 65Mn | AISI 1556 | |
| 22 | 手柄 | KT330-08 | A47-667 32510 | |

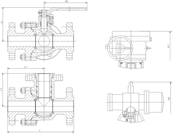
| DN (mm) | 15 | 20 | 25 | 40 | 50 | 65 | 80 | 100 | 125 | 150 | 200 | 250 | 300 | |
|---|---|---|---|---|---|---|---|---|---|---|---|---|---|---|
| NPS(in) | 1/2 | 3/4 | 1 | 11/2 | 2 | 21/2 | 3 | 4 | 5 | 6 | 8 | 10 | 12 | |
| L | 140 | 165 | 165 | 250 | 260 | 320 | 320 | 370 | 510 | 510 | 580 | 680 | 720 | |
| L1 | 70 | 83 | 83 | 125 | 130 | 160 | 160 | 185 | 255 | 255 | 290 | 335 | 360 | |
| 手动 | H | 64 | 84 | 84 | 152 | 157 | 183 | 183 | 195 | 355 | 355 | 430 | 475 | 550 |
| W | 130 | 160 | 200 | 500 | 500 | 600 | 600 | 700 | 850 | 850 | 1000 | 1000 | 1000 | |
| Kg | 3.5 | 4.5 | 6.8 | 10.5 | 14.2 | 22.1 | 28.5 | 49.5 | 58.4 | 65.2 | 75.8 | 95.2 | 125 | |
| 电动 | H1 | - | - | - | - | - | - | 546 | 558 | 718 | 742 | 817 | 878 | 946 |
| 电动装置 | - | - | - | - | - | - | Q60-1 | Q60-1 | Q60-1 | Q120-1 | Q120-1 | Q120-1 | Q120-1 | |
| 气动 | H2 | 215 | 235 | 260 | 328 | 400 | 427 | 488 | 500 | 660 | 756 | 831 | 952 | 1020 |
| 电动装置 | AG09 | AG09 | AG13 | AG13 | AW13 | AW13 | AW13 | AW17 | AW17 | AW20 | AW20 | AW28 | AW28 | |
![]() 三通球阀T型通 | ![]() 实线:三通球阀T型通口 虚线:三通球阀L型通口 |
![]() | |
| 三通球阀L型通口 | |
L 型流道的三通 4 面阀座球阀,采用 2 面阀座,受力平衡,保证闭止通道上可靠密封。主要用于流路的换向。
T 型流道的三通 4 面阀座球阀,采用 4 面阀座,受力平衡,保证闭止通道上可靠密封。主要用于分流、混流、换向以及三通道的完全开放。
| 通径 /压力 | 15 | 20 | 25 | 40 | 50 | 65 | 80 | 100 | 125 | 150 | 200 | 250 | 300 |
|---|---|---|---|---|---|---|---|---|---|---|---|---|---|
| PNl.6 | 5 | 8 | 15 | 24 | 35 | 75 | 100 | 180 | 350 | 500 | 730 | 1210 | 1950 |
| PN2.5 | 5 | 8 | 16 | 27 | 45 | 90 | 120 | 210 | 450 | 600 | 1000 | 1600 | 2800 |
| PN4.0 | 8 | 15 | 36 | 50 | 75 | 145 | 220 | 350 | 650 | 850 | 1450 | 2400 | 4200 |
| 通径 /压力 | 1/2 ″ | 3/4 ″ | 1 ″ | 11/2 ″ | 2 ″ | 21/2 ″ | 3 ″ | 4 ″ | 5 ″ | 6 ″ | 8 ″ | 10 ″ | 12 ″ |
| CIass 150 | 5 | 8 | 16 | 24 | 38 | 75 | 95 | 185 | 380 | 600 | 1050 | 1650 | 2625 |
| Class 300 | 8 | 18 | 38 | 58 | 90 | 180 | 240 | 420 | 900 | 1425 | 2300 | 3000 | 4950 |
注:表中所列数据未经实际测定,仅供参考。
版权所有 © 纽浪(上海)阀门科技有限公司 备案号:沪ICP备14038546号-2 图文来源网络 如有侵权请联系删除
技术支持: 纽浪(上海)阀门